VICTRIX Zeus Superior 26 ErP
- 21.0kW Névleges fűtési teljesítmény
- 25.8kW Névleges HMV teljesítmény
- Fali beépített tárolós kombi Működés módja
- 92% "A" kategória fűtés, "A" XL kategória HMV Szezonális hatásfok (2010/30/EU)
- 900 / 600 / 466 Méret (mag/szél/mély)
Bemutatás
Az VICTRIX Zeus Superior ErP 26 fali készülék 21kW teljesítménnyel képes fűtési-, ill. 26 kW teljesítménnyel tárolós rendszerben használati melegvizet előállítani. A VICTRIX Zeus Superior ErP kazánok kompakt hidraulikai egysége kis szervizigényű és már 0,5 bar fűtési rendszernyomással is működik. A készülék az (opcionális) Super AMICO távszabályzóval könnyen és gyorsan, a készüléktől távolról is vezérelhető. Modulációs szivattyúja még takarékosabbá teszi a készüléket, hiszen a szivattyú fordulatszámát a vezérlő elektronika képes szabályozni. Külsőhőmérséklet-érzékelő (opcionális) csatlakoztatása esetén végtelen számú jelleggörbével működő időjárásfüggő szabályozás is lehetséges.
KÉT FÜGGETLEN HŐCSERÉLŐ
Mind a fűtési, mind a HMV hőcserélő rozsdamentes acélból készült.
DIGITÁLIS VEZÉRLÉSŰ LÁNGMODULÁCIÓ
Az elektronikus lángmoduláció folyamatos energia megtakarítás és emelt szintű komfort biztosítása mellett képes a fűtővíz, valamint a használati melegvíz hőmérsékletének megfelelő szabályozására.
DIGITÁLIS KEZELŐFELÜLET
A digitális kezelőfelület biztosítja a készülék könnyű kezelhetőségét. A kézreálló gombokkal pontosan beállítható a hőmérséklet, illetve az egyéb paraméterek. A kijelző ábrák és kódok segítségével tájékoztat az aktuális üzemmódról és az esetleges hibákról.
SZABÁLYOZHATZÓ BY-PASS
A beépített, szabályozható by-pass lehetővé teszi a kazán használatát termosztatikus szeleppel felszerelt radiátoros rendszer esetén is. A szabályozható by-pass optimális működést tesz lehetővé.
MOTOROS VÁLTÓSZELEP
A használati melegvíz előállításakor a beépített, motoros váltószelep irányítja a kazánvizet a HMV hőcserélő felé.
BEÉPÍTETT IDŐJÁRÁSFÜGGŐ SZABÁLYOZÁS
Az időjárásfüggő szabályozás magasabb komfort mellett biztosít költséghatékonyabb üzemelést. Az elektronika a külső hőmérséklet függvényében változtatja a kazánvíz-hőmérsékletet, így energiát takarít meg és magasabb komfortot biztosít. A készülék elektronikája tetszőleges szabályozási egyenes beállítását teszi lehetővé.
ROZSDAMENTES ACÉL MELEGVÍZTÁROLÓ
A beépített 54 literes űrtartalmú melegvíztároló lehetővé teszi a melegvíz felhasználást több csapoló, például két fürdőszoba egyidejű használata esetén is.
HMV TÁGULÁSI TARTÁLY
A HMV körben jelentkező nyomásnövekedés kompenzálására a Victrix Zeus Superior ErP készülékek egy második beépített tágulási tartállyal is rendelkeznek a HMV kör számára.
EGYÜTTMŰKÖDÉS A DIM EGYSÉGEKKEL
A VICTRIX Zeus Superior ErP készülékek teljes körűen képesek együttműködni az Immergas DIM egységeivel, így lehetséges több, egymástól független fűtési kör (akár radiátoros, akár kevert) kialakítása.
NAGYMÉRETŰ LCD KIJELZŐ
A nagyméretű kijelzőn a készülék számos információt közöl a felhasználóval. Megjeleníti a különböző működési jellemzőket, az aktuális funkciót (szivattyú utókeringtetés, égéstér szellőztetés, HMV készítés, stb.) vagy akár az üzemórák, gyújtások számát.
MODULÁCIÓS SZIVATTYÚ
A kazán keringtető szivattyújának sebességét a vezérlő elektronika mindig az optimálisra állítja be, hogy biztosítsa az előremenő és a visszatérő fűtővíz közötti hőmérsékletkülönbséget.
PROGRAMOZHATÓ TÁROLÓFŰTÉS
Az Immergas új távvezérlőjével, a Super AMICO-val, a VICTRIX Zeus Superior ErP készülékek tárolójának fűtése a fűtési rendszerhez hasonlóan programozható. Időzíthető a normál és a csökkentett tároló hőmérséklet.
KONDENZÁCIÓS TECHNOLÓGIA
Az égéstermék rejtett hőjének (vízgőz tartalmának) kihasználása (kondenzációja) révén ugyanannyi energiát, mint a hagyományos, nem kondenzációs készülékek, kevesebb gáz eltüzelésével képesek leadni. A jobb tüzeléstechnikai hatásfok révén nem csak energiát takarít meg, hanem a környezetet is kevésbé terheli.
IPX5D ELEKTROMOS VÉDETTSÉG
Magas páratartalmú és fröccsenő vizes környezetben is biztosítja a készülék biztonságos működését.
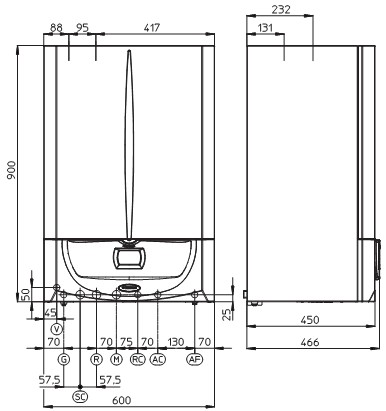
Méretek
|
BEFOGLALÓ MÉRETEK |
||||
|
Típus |
Magasság [mm] |
Szélesség [mm] |
Mélység |
Füstgáz evezetés / levegő bevezetés mérete [mm] |
|
VICTRIX Zeus Superior 26 ErP |
900 |
600 |
466 |
Ø 60/100 |

|
CSATLAKOZÓ MÉRETEK |
||||||||
|
Típus |
Fűtési előremenő |
Fűtési visszatérő |
Használati melegvíz |
HMV cirkuláció |
Használati hidegvíz |
Kondenzvíz elvezetés |
Gáz
|
Elektromos |
|
VICTRIX Zeus Superior 26 ErP |
3/4" |
3/4" |
1/2" |
1/2" |
1/2" |
NA15 |
1/2" |
22OV / 50Hz |
Kiegészítők
Külsőhőmérséklet-érzékelő
Fűtési elzárócsapok roppantó gyűrűs csatlakozással, szűrővel szerelve
HMV cirkulációs bekötőcső készlet szivattyúval
HMV cirkulációs bekötőcső
Kondenzvíz átemelő szivattyú
Alpha mágneses örvényszűrő
Fűtési elzárócsapok roppantó gyűrűs csatlakozással (2 db)
Univerzális flexibilis bekötőcső készlet fali kiálláshoz
Programóra HMV cirkulációs szivattyúhoz
Biztonsági termosztát készlet
Kézi vezérlésű szobatermosztát
Crono 7 heti programozású, digitális szobatermosztát
Crono 7 vezeték nélküli, heti programozású, digitális szobatermosztát
Tybox 21 digitális szobatermosztát
Tybox 117 heti programozású, digitális szobatermosztát
Tybox 137 vezeték nélküli, heti programozású, digitális szobatermosztát
Super AMICO heti programozású digitális távvezérlő
AMICO V2 heti programozású, digitális távvezérlő
Többfunkciós relé panel
Zóna vezérlő doboz
Ø 80 mm-es, vízszintes elvezető készlet végelem nélkül
Ø 60/100 mm-es, koaxiális, vízszintes készlet
Ø 60/100 mm-es, koaxiális, vízszintes kivezetés
Ø 60/100 mm-es, koaxiális, függőleges készlet cserép vörös színben
Ø 80/80 mm-es, szétválasztott készlet
Ø 80 mm-es vízszintes elvezető készlet túlnyomásos üzemre alkalmas kéménybe történő bekötéshez
Ø 80 mm-es vízszintes ki- és bevezető készlet
Ø 80 mm-es végelem vízszintes ki- és bevezetéshez
Ø 80 mm-es függőleges ki- és bevezető készlet
Ø 80/125 mm-es vízszintes kivezető készlet induló idommal
Ø 80/125 mm-es függőleges kivezető készlet induló idommal és ferde tető átvezető gallérral
Ø 60 mm-es tömítőgyűrű
Ø 80 mm-es tömítőgyűrű
Ø 80 mm-es tömítőgyűrű ívekbe
Ø 100 mm-es tömítőgyűrű
Ø 110 mm-es tömítőgyűrű
Ø 125 mm-es tömítőgyűrű
Ø 60/100 mm-es tömítőgyűrű
Ø 80 mm-es, 0,5 m-es toldócső
Ø 80 mm-es, 1 m-es toldócső
Ø 80 mm-es, 2 m-es toldócső
Ø 60/100 mm-es, 0,5 m-es toldócső
Ø 60/100 mm-es, 1 m-es toldócső
Ø 80/125 mm-es, 1 m-es toldócső
Ø 80/125 mm-es, 2 m-es toldócső
Ø 80 mm-es, 90°-os ív
Ø 80 mm-es, 45°-os ív
Ø 60/100 mm-es, 90°-os ív
Ø 60/100 mm-es, 45°-os ív
Ø 80/125 mm-es, 90°-os ív
Ø 80/125 mm-es, 45°-os ív
Ø 80 mm-es, karimás, induló idompár
Ø 60 mm-es, 1 m-es toldócső
Ø 60 mm-es, 2 m-es toldócső
Ø 60 mm-es, 90°-os ív
Ø 60 mm-es, 45°-os ív
Ø 60 mm-es rögzítő kengyel csőtoldatok szétcsúszása ellen
Ø 60 mm-es támasztó gyűrű kéményben történő szereléshez a cső központosításához
Felfúrható konzol és csúszó támasztó lemez
Ø 60 mm-es, induló készlet a kémény bekötéshez, Ø 80/60 mm-es szűkítő idommal, 90°-os ívvel és rögzítő pánttal
Kémény szerelőnyílását lezáró készlet szerelőnyílást lezáró lemezzel, tartólemezekkel Ø 80-mm-es bekötéshez, szorítógyűrűs csatlakozóval a kondenzvíz kivezetéshez
Ø 80/125 mm-es, lapos tető átvezető gallér
Ø 80 mm-es flexibilis béléscső készlet
Alap készlet 80-as flexibilis béléscső rendszerhez
Ø 80/125 m-es füstgáz kivezető végelem, kültéri egység 80-as flexibilis béléscső rendszerhez
Toldó adapter 80-as flexibilis csövek közé
Ø 80 mm-es, karimás, induló idom füstgáz elvezetéshez
Ø 60/100 mm-es, karimás, induló idom
Ø 80/125 mm-es, karimás, induló idom
Ø 100 mm-es, fali, csatlakozó idom C9X rendszerhez
Ø 125 mm-es, fali, csatlakozó idom C9X rendszerhez, Ø 80/125 mm-es, karimás, induló idommal
Ø 60/100 mm-es, egyenes idom nyitható vizsgáló nyílással
Ø 80/125 mm-es, egyenes idom nyitható vizsgáló nyílással
Ø 60/100 mm-es, könyök idom nyitható vizsgáló nyílással
Ø 80/125 mm-es, könyök idom nyitható vizsgáló nyílással
Ø 60 mm-es végelem függőleges kivezetéshez, fehér színben, esővédő sapkával és kéménylezáró lemezzel
Ø 80/125 m-es füstgáz kivezető végelem, kültéri egység 50-es flexibilis béléscső rendszerhez
Alap készlet 50-es flexibilis béléscső rendszerhez
Toldó adapter 50-es flexibilis csövek közé
Clone of Ø 50 mm-es flexibilis béléscső készlet
80 mm-es hajlított bekötő készlet (70 fokos) flexibilis rendszerhez
Ø 80 mm-es rögzítő kengyel csőtoldatok szétcsúszása ellen
Ø 80 mm-es támasztó gyűrű kéményben történő szereléshez a cső központosításához
60 mm-es bővítő idom 80 mm-es flexibilis rendszerhez
Takaró gyűrű fali átvezeteséhez 80 mm-es fehér
Takaró gyűrű fali átvezeteséhez 100 mm-es fehér
Takaró gyűrű fali átvezeteséhez 125 mm-es fehér
Takaró gyűrű fali átvezeteséhez 80 mm-es szürke
Takaró gyűrű fali átvezeteséhez 100 mm-es szürke