- 23.6kW Névleges fűtési teljesítmény
- 23.6kW Névleges HMV teljesítmény
- Fali átfolyós kombi Működés módja
- 75% "C" kategória fűtés, "B" XL kategória HMV Szezonális hatásfok (2010/30/EU)
- 751 / 440 / 240 Méret (mag/szél/mély)
Bemutatás
Figyelem! 2015.09.26-tól nyílt égésterű, ErP direktíva hatálya alá tartozó készülékek csak társasházi gyűjtőkéményre csatlakozó készülékek cseréjeként szabad felszerelni!
Idézet a 813/2013/EU rendeletből:
„Ennek a természetes huzatú helyiségfűtő tüzelőkazánnak rendeltetés szerint a meglévő épületek lakóingatlanjai által közösen használt égéstermék-vezetékhez kell csatlakoznia, amelyen keresztül az égéstermék a kazánnak helyt adó helyiségből távozik. Az égési levegőt közvetlenül a helyiségből nyeri, és visszaáramlás-gátlót tartalmaz. Kisebb hatékonysága miatt a kazán más célú felhasználását kerülni kell, mert úgy energiafogyasztása és üzemeltetési költsége nagyobb lenne.”
A NIKE Star 24 ErP fali gázkazán 23,6 kW teljesítménnyel képes fűtési és átfolyós rendszerben használati melegvizet előállítani. Kompakt méretének (mélysége csak 24cm!) és új, elegáns megjelenésének köszönhetően szinte bárhová felszerelhető. A NIKE Star 24 ErP kazán új, elektronikus modulációs panellel rendelkezik, digitális kezelőfelülettel. A készülék a digitális távszabályozóval (DRC) is együttműködik. Az automatikus by-pass része a készülék alapfelszerelésének és lehetővé teszi a kazán használatát bármely fűtési rendszerben. A NIKE Star 24 ErP hagyományos, nyitott égésterű készülék.
BITERMIKUS HŐCSERÉLŐ
A bitermikus hőcserélőnek köszönhetően a készülék gyorsan képes rendelkezésére bocsátani a kívánt hőmérsékletű használati melegvizet.
PROGRAMOZHATÓ LÁNGMODULÁCIÓ
Az elektronikus lángmoduláció folyamatos energia megtakarítás és emelt szintű komfort biztosítása mellett képes a fűtővíz, valamint a használati melegvíz hőmérsékletének megfelelő szabályozására. A maximális teljesítmény elérése akár tíz perc időtartamra is elnyújtható, ezáltal csökkentve a ki-bekapcsolások számát, növelve a hőcserélő élettartamát.
ÚJ DIGITÁLIS KEZELŐFELÜLET
A digitális kezelőfelület biztosítja a készülék könnyű kezelhetőségét. A nyomógombokkal pontosan beállítható a hőmérséklet, illetve az egyéb paraméterek. A kijelző ábrák és kódok segítségével tájékoztat az aktuális üzemmódról és az esetleges hibákról.
EMELT SZINTŰ KOMFORT A DRC ALKALMAZÁSÁVAL
A DRC távvezérlő alkalmazása esetén a kazán minden változtatható paramétere a távvezérlővel módosítható. A működés jellemzői, illetve az esetleges hibaüzenetek a távvezérlő kijelzőjéről leolvashatók. Távvezérlő csatlakoztatása esetén a kazán elektronikus lángmodulációja nem a kazánvíz hőmérsékletének, hanem a helyiség hőmérsékletének függvényében működik, mely magasabb komfortot biztosít.
AUTOMATIKUS BY-PASS
Az automatikus by-pass része a készülék alapfelszerelésének, és lehetővé teszi a kazán használatát termosztatikus szeleppel felszerelt radiátoros rendszer esetén is.
IPX4D ELEKTROMOS VÉDETTSÉG
Magas páratartalmú és fröccsenő vizes környezetben is biztosítja a készülék biztonságos működését.
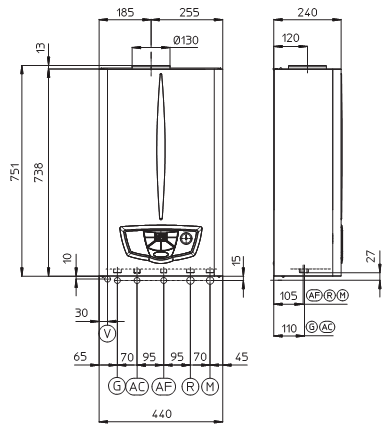
Méretek
|
BEFOGLALÓ MÉRETEK |
||||
|
Típus |
Magasság [mm] |
Szélesség [mm] |
Mélység |
Füstgáz evezetés mérete [mm] |
|
NIKE Star 24 ErP |
751 |
440 |
240 |
Ø 130 |

|
CSATLAKOZÓ MÉRETEK |
||||||
|
Típus |
Fűtési előremenő |
Fűtési visszatérő |
HMV
|
Használati hidegvíz AF |
Gáz
|
Elektromos hálózat |
|
NIKE Star 24 ErP |
3/4" |
3/4" |
1/2" |
1/2" |
3/4" |
22OV / 50Hz |
Kiegészítők
Fűtési elzárócsapok roppantó gyűrűs csatlakozással (2 db)
Fűtési elzárócsapok roppantó gyűrűs csatlakozással, szűrővel szerelve
Alpha mágneses örvényszűrő
Univerzális merevfalú bekötőcső készlet fali kiálláshoz
Ø 80 mm-es, vízszintes elvezető készlet végelem nélkül
Ø 60/100 mm-es, koaxiális, vízszintes készlet
Ø 60/100 mm-es, koaxiális, vízszintes kivezetés
Ø 60/100 mm-es, koaxiális, függőleges készlet cserép vörös színben
Ø 80/80 mm-es, szétválasztott készlet
Ø 80 mm-es vízszintes elvezető készlet túlnyomásos üzemre alkalmas kéménybe történő bekötéshez
Ø 80 mm-es vízszintes ki- és bevezető készlet
Ø 80 mm-es végelem vízszintes ki- és bevezetéshez
Ø 80 mm-es függőleges ki- és bevezető készlet
Ø 80/125 mm-es vízszintes kivezető készlet induló idommal
Ø 80/125 mm-es függőleges kivezető készlet induló idommal és ferde tető átvezető gallérral
Ø 60 mm-es tömítőgyűrű
Ø 80 mm-es tömítőgyűrű
Ø 80 mm-es tömítőgyűrű ívekbe
Ø 100 mm-es tömítőgyűrű
Ø 110 mm-es tömítőgyűrű
Ø 125 mm-es tömítőgyűrű
Ø 60/100 mm-es tömítőgyűrű
Ø 80 mm-es, 0,5 m-es toldócső
Ø 80 mm-es, 1 m-es toldócső
Ø 80 mm-es, 2 m-es toldócső
Ø 60/100 mm-es, 0,5 m-es toldócső
Ø 60/100 mm-es, 1 m-es toldócső
Ø 80/125 mm-es, 1 m-es toldócső
Ø 80/125 mm-es, 2 m-es toldócső
Ø 80 mm-es, 90°-os ív
Ø 80 mm-es, 45°-os ív
Ø 60/100 mm-es, 90°-os ív
Ø 60/100 mm-es, 45°-os ív
Ø 80/125 mm-es, 90°-os ív
Ø 80/125 mm-es, 45°-os ív
Ø 80 mm-es, karimás, induló idompár
Ø 60 mm-es, 1 m-es toldócső
Ø 60 mm-es, 2 m-es toldócső
Ø 60 mm-es, 90°-os ív
Ø 60 mm-es, 45°-os ív
Ø 60 mm-es rögzítő kengyel csőtoldatok szétcsúszása ellen
Ø 60 mm-es támasztó gyűrű kéményben történő szereléshez a cső központosításához
Felfúrható konzol és csúszó támasztó lemez
Ø 60 mm-es, induló készlet a kémény bekötéshez, Ø 80/60 mm-es szűkítő idommal, 90°-os ívvel és rögzítő pánttal
Kémény szerelőnyílását lezáró készlet szerelőnyílást lezáró lemezzel, tartólemezekkel Ø 80-mm-es bekötéshez, szorítógyűrűs csatlakozóval a kondenzvíz kivezetéshez
Ø 80/125 mm-es, lapos tető átvezető gallér
Ø 80 mm-es flexibilis béléscső készlet
Alap készlet 80-as flexibilis béléscső rendszerhez
Ø 80/125 m-es füstgáz kivezető végelem, kültéri egység 80-as flexibilis béléscső rendszerhez
Toldó adapter 80-as flexibilis csövek közé
Kézi vezérlésű szobatermosztát
Crono 7 heti programozású, digitális szobatermosztát
Crono 7 vezeték nélküli, heti programozású, digitális szobatermosztát
Tybox 21 digitális szobatermosztát
Tybox 117 heti programozású, digitális szobatermosztát
Tybox 137 vezeték nélküli, heti programozású, digitális szobatermosztát
Ø 80 mm-es, karimás, induló idom füstgáz elvezetéshez
Ø 60/100 mm-es, karimás, induló idom
Ø 80/125 mm-es, karimás, induló idom
Ø 100 mm-es, fali, csatlakozó idom C9X rendszerhez
Ø 125 mm-es, fali, csatlakozó idom C9X rendszerhez, Ø 80/125 mm-es, karimás, induló idommal
Ø 60/100 mm-es, egyenes idom nyitható vizsgáló nyílással
Ø 80/125 mm-es, egyenes idom nyitható vizsgáló nyílással
Ø 60/100 mm-es, könyök idom nyitható vizsgáló nyílással
Ø 80/125 mm-es, könyök idom nyitható vizsgáló nyílással