- 24.0kW Névleges fűtési teljesítmény
- - Névleges HMV teljesítmény
- Fali átfolyós kombi Működés módja
- - Szezonális hatásfok (2010/30/EU)
- 751 / 440 / 240 Méret (mag/szél/mély)
Bemutatás
A NIKE Mythos 24 kW fali gázkazán 24,0 kW teljesítménnyel képes fűtési és átfolyós rendszerben használati melegvizet előállítani. Kompakt méretének (mélysége csak 24 cm!) és új, elegáns megjelenésének köszönhetően szinte bárhová fölszerelhető. A NIKE Mythos 24 kW kazán új, elektronikus modulációs panellel rendelkezik, digitális kezelőfelülettel. A készülék digitális távszabályozóval (AmicoV2) is együttműködik.
Az automatikus by-pass része a készülék alapfelszerelésének és lehetővé teszi a kazán használatát bármely fűtési rendszerben.
KÉT FÜGGETLEN HŐCSERÉLŐ
Az egyik rézből a fűtési körhöz, a másik rozsdamentes acélból a használati melegvíz körhöz. Ez a megoldás kiváló teljesítményt nyújt a fűtéshez és a használati melegvíz készítéshez.
PROGRAMOZHATÓ LÁNGMODULÁCIÓ
Az elektronikus lángmoduláció folyamatos energia megtakarítás és emelt szintű komfort biztosítása mellett képes a fűtővíz, valamint a használati melegvíz hőmérsékletének megfelelő szabályozására. A maximális teljesítmény elérése akár tíz perc időtartamra is elnyújtható, ezáltal csökkentve a ki-bekapcsolások számát, növelve a hőcserélő élettartamát.
ÚJ DIGITÁLIS KEZELŐFELÜLET
A digitális kezelőfelület biztosítja a készülék könnyű kezelhetőségét. A nyomógombokkal pontosan beállítható a hőmérséklet, illetve az egyéb paraméterek. A kijelző ábrák és kódok segítségével tájékoztat az aktuális üzemmódról és az esetleges hibákról.
MOTOROS VÁLTÓSZELEP
A használati melegvíz előállításakor a beépített, motoros váltószelep irányítja a kazánvizet a HMV hőcserélő felé.
AUTOMATIKUS BY-PASS
Az automatikus by-pass része a készülék alapfelszerelésének, és lehetővé teszi a kazán használatát termosztatikus szeleppel felszerelt radiátoros rendszer esetén is.
IPX5D ELEKTROMOS VÉDETTSÉG
Magas páratartalmú és fröccsenő vizes környezetben is biztosítja a készülék biztonságos működését.
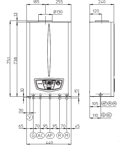
Méretek
|
BEFOGLALÓ MÉRETEK |
||||
|
Típus |
Magasság [mm] |
Szélesség [mm] |
Mélység |
Füstgáz elvezetés [mm] |
|
NIKE Mythos 24 kW |
751 |
440 |
240 |
Ø 130 |

|
CSATLAKOZÓ MÉRETEK |
||||||
|
Típus |
Fűtési előremenő |
Fűtési visszatérő |
HMV
|
Használati hidegvíz |
Gáz
|
Elektromos hálózat |
|
NIKE Mythos 24 kW |
3/4" |
3/4" |
1/2" |
1/2" |
3/4" |
23O V / 50 Hz |